Catálogo
- Principal
- Servicios y equipos de ingenieríaEvaporadores de vacíoCentrífugas decantadoras, separadorasTrituradoras para moler cereales en el proceso de producción de piensos, harina y etanolInstrumentos de control y medición, sensores, caudalímetros para la automatización de la producciónDiseño, construcción de una destilería, BRUIntercambiador de calor de espiral, carcasa y tubosSecadoras industrialesCalderas de combustible sólidoEnzimas, levadura de alcohol, antisépticos para la producción de alcohol.Auditoría energéticaCalderas industriales de vapor
- Intercambiador de calor de espiral, carcasa y tubos
- Intercambiador de calor recuperativo de carcasa y tubos para columna de destilación W1.101+W1.102, 160m2+50m2
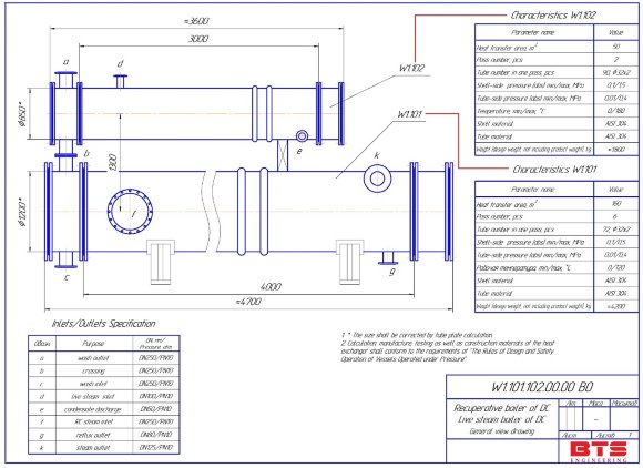
Intercambiador de calor recuperativo de carcasa y tubos para columna de destilación W1.101+W1.102, 160m2+50m2
Visión

Intercambiador de calor W1.101 con una superficie de 160 m2:
Presión de diseño en el lado de la carcasa 0,55 MPa / en el lado de la tubería 0,44 MPa;
Temperatura de diseño del lado de la carcasa 130C / del lado de la tubería 130C ;
Carcasa DN1000*8 mm, S30408;
Tubería OD32*2*4000mm, 6*72pcs, S30408;
Compensador ZD1000-6, S30408;
Chapa de tubo 40mm, S30408;
Brida de canal 48+3mm, Q345R+S30408;
Tapa del canal 55+3mm, Q345R+S30408.
Intercambiador de calor W1.102 con una superficie de 50 m2:
Presión de diseño en el lado de la carcasa 1,65 MPa / en el lado del tubo 0,44 MPa;
Temperatura de diseño en el lado de la carcasa 190C / en el lado de la tubería 190C;
Tubería de revestimiento DN650*6mm, S30408;
Tubería OD32*2*3000mm, 2*90pcs, S30408;
Compensador ZD650-5, S30408;
Chapa de tubo 38mm, S30408;
Canal de tubería Brida 36+3mm, Q345R+S30408;
Tapa del canal delantero 38+3mm, Q345R+S30408;
Tapa canal trasero 24+3mm, Q345R+S30408
Características
| Manufacturero | BTS Engineering |
| Material | AISI 304 acero inoxidable |
| Área, metros cuadrados | 210 |
| Analógico | Alfa Laval, Danfoss, FAMET S.A., FUNKE, GEA, GEA Wigand, RELIZ, SECESPOL, SONDEX, SWEP, Tetra Pak, Vogelbusch, Винпромсервис, Опытно механический завод Винница |
| Datos logísticos: |









































































































































