Katalog
Więcej kategorii
- Główna
- Usługi inżynieryjne i sprzętParowniki próżnioweWirówki dekantacyjne, separatoryKruszarki do rozdrabniania roślin zbożowych w procesie produkcji pasz, mąki i etanoluOprzyrządowanie i czujniki do automatyzacji produkcjiProjekt, budowa gorzelni, instalacja destylacyjnaSpiralny płaszczowo-rurowy wymiennik ciepłaSuszarki przemysłoweKotły na paliwo stałeEnzymy, drożdże alkoholowe, środki antyseptyczne do produkcji alkoholuAudyt energetycznyPrzemysłowe kotły parowe
- Projekt, budowa gorzelni, instalacja destylacyjna
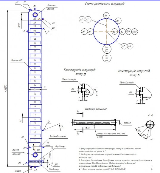
- Kolumna destylacyjna ADV 1400 28 płyt
Kolumna destylacyjna ADV 1400 28 płyt
Dokumentacja
Pobierz instrukcje, katalog dla Kolumna destylacyjna ADV 1400 28 płyt
Charakterystyka
| Producent | BTS Engineering |
| Materiał | AISI 304 stal nierdzewna |
| Rodzaj ogrzewania/chłodzenia | ogrzewanie wewnątrz parą, ogrzewanie rekuperatyvny parowej |
| Średnica, mm | 1400 |
| Temperatura (max), C | 160 |
| Ilość talerzy, szt | 28 |
| odległość między talerzami, mm | 500 |
| Rodzaj talerzy | zawór |
| Ciśnienie robocze | Odkurzać, Ciśnienie atmosferyczne, nadciśnienie |
| Zastosowanie | izopropyl, olej, rozpuszczalnik, alkohol, surowy, diagram, etanol |
| Dane logistyczne: |








































































































































