Katalog
Mehr Kategorien
- Hauptsächlich
- Ingenieurleistungen und AusrüstungVakuumeindampfanlageDekanterzentrifugen, SeparatorenBrecher für die Zerkleinerung von Getreide für die Futtermittel-, Mehl- und EthanolproduktionKontroll- und Messgeräte, Sensoren, Durchflussmesser für die ProduktionsautomatisierungEntwurf, Bau einer Brennerei, DestillationsanlageSpiralwärmetauscher, rohrbündelwärmetauscherIndustrielle TrocknerFestbrennstoffkesselEnzyme, Alkohol Hefe, Antiseptika zur Herstellung von AlkoholEnergie-AuditDampfindustriekessel
- BTS-V-2100 Nasswäscher
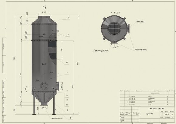
BTS-V-2100 Nasswäscher
Überblick

Die Grundlage der Wirkung des Wäschers ist das Prinzip der Absorption des zugeführten Mediums durch Flüssigkeit und Reinigung von Partikeln von Suspensionen im Prozess. Dabei kommt es zu einem intensiven Massentausch zwischen den Phasen. Verbindungen aus der Gasfraktion gehen in die flüssige Fraktion über. Die gereinigte Gasfraktion wird in die Atmosphäre abgegeben, und flüssig – zusammen mit dem Schlamm fällt in den Speicherbehälter des Wäschers durch den Abfluss. In regelmäßigen Abständen wird die flüssige Phase aus dem Wäscher-Behälter zur Nachreinigung und weiter in die Kanalisation geleitet. Die resultierende Lösung aus dem Wäscher-Behälter kann wiederverwendet werden.
Eigenschaften
| Hersteller | BTS-Engineering |
| Leistung (max), Kubikmeter/Stunde | 30000 |
| Das Modell | BTS-V-2100 |
| Durchmesser, mm | 2 100 |
| Füllkörper Typ | Unregelmäßige Düse |
| Leistung (nom), Kubikmeter/Stunde | 20000 |
| Höhe, mm | 7 550 |
| Logistische Daten: |









































































































































