Каталог товарів
- Головна
- Насоси промислові
- Насоси за типомБочкові насоси Вакуумні насосиВертикальні напівзаглибні насосиГвинтові насосиВихрові насосиГерметичні насосиДиспергатор-емульгатор, гомогенізаторДозуючі насосиІмпелерні насосиКаналізаційні станціїКонсольні насосиКулачкові насосиМембранні насосиМембранні погружні пневматичні насосиБагатоступінчасті насосиМоноблочні насоси із чавунуМотопомпиМоторні мембранні насосиНасос Ex ATEXНасос з приводом від ВВПНасоси двостороннього входуНасоси конструкції «Інлайн»Насоси з мокрим роторомОсьові пропеллерні насосиПеристальтичні насосиПластинчато-роторні насосиПлунжерні насосиНапівзанурені фекальні, дренажні насосиЗанурювальні дренажно-фекальні насосиПогружні шламові насосиПоршневі насосиРоликові насоси Самовсмоктуючі насосиСанітарні, гігієнічні насосиСвердловинні насосиСоленоїдний насос дозаторСтанції водопостачання і пожежогасінняХімічні насоси з магнітною муфтоюВідцентрові насосиШестеренні насосиІндустріальні шлангові перистальтичні насоси
- Диспергатор-емульгатор, гомогенізатор
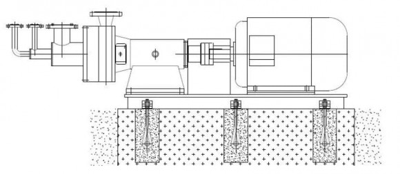
- DHC10-185 насос для гомогенізації сполук
DHC10-185 насос для гомогенізації сполук
З цим товаром також купують
1042539
Тільки під замовлення
1042541
Тільки під замовлення
Документація
Скачати інструкцію, каталог для DHC10-185 насос для гомогенізації сполук
Огляд

Насос DHC для гомогенізації сполук складається з багатотрубної складової камери і складеного насоса. Цей насос складається з 2-5 шарів статорів і обертачів, зазор між зубчастими колесами кожного шару статора і ротора від широкого до тонкого, дозволяє різним сировинним матеріалам з'єднувати і гомогенізувати момент відповідно до вимог до швидкості.
Ці продукти широко використовуються для нейтралізації домішок, необхідних для змішування однорідних матеріалів і технологічних процесів хімічної промисловості. Ці серійні продукти можуть значно спростити традиційні виробничі процеси та підвищити ефективність виробництва та якість продукції.
Характеристики
| Виробник | DURREX |
| Продуктивність, м.куб / год | 3 |
| Висота подачі, м.вод.ст | 160 |
| Потужність, кВт | 2,2, 3, 4 |
| Частота обертання, об/хв | 260-1400 |
| Продуктивність (max), м.куб / год | 3 |
| Максимальна в'язкість, сПз | 200 000 |
| Висота подачі (max), м.вод.ст | 160 |
| Серія насоса | DHC |
| Тип насосу | гомогенізатор |
| Тип приводу | електричний |
| Тип установки | горизонтальний |
| Гарантія, місяців | 12 |
| Логістичні дані: |



























































































































































