Каталог товаров
 Насосы промышленные
Насосы промышленные Торцевые уплотнения
Торцевые уплотнения- Главная
- Насосы промышленные
- Насосы по типуБочковые насосыВакуумные насосыВертикальные полупогружные насосыВинтовые насосыВихревые насосыГерметичные насосыДиспергатор - эмульгатор гомогенизаторДозирующие насосыИмпеллерные насосыКанализационные станцииКонсольные насосыКулачковые насосыМембранные диафрагменные пневматические насосыМембранные погружные пневматические насосыМногоступенчатые насосыМоноблочные насосы из чугунаМотопомпыМоторные мембранные насосыНасос Ex ATEXНасос с приводом от ВОМНасосы двустороннего входаНасосы конструкции «Инлайн»Насосы с мокрым роторомОсевые пропеллерные насосыПеристальтические шланговые насосыПластинчато-роторные насосыПлунжерные насосыПоверхностные дренажно-фекальные насосыПогружные дренажно-фекальные насосыПогружные шламовые насосыПоршневые насосыРоликовый насосСамовсасывающие насосыСанитарные, гигиенические насосыСкважинные насосыСоленоидный насос дозаторСтанции водоснабжения и пожаротушенияХимические насосы с магнитной муфтойЦентробежные насосыШестеренные насосыИндустриальные шланговые перистальтические насосы
- Вакуумные насосы
- Пластинчато-роторные вакуумные насосы
- 41 PBO вакуумный насос с масляной смазкой
41 PBO вакуумный насос с масляной смазкой
С этим товаром также покупают
Обзор

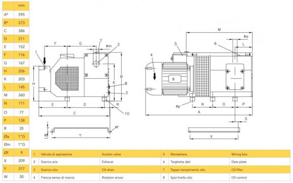
Пластинчато-роторный маслозаполненный вакуумный насос серии PBO может использоватся в различных областях промышленности где необходимо получить высокий вакуум при большой производительности и малых затратах электроэнергии.
Корпус насоса изготовлен из высококачественного чугуна, масляный и воздушный сепаратор из алюминия. Двигатель соединен с рабочим органом при помощи гибкой муфты.
Частота оборотов двигателя составляет 1450 об/мин, что положительно сказывается на надежности как подшипников двигателя, так и агрегата в целом.
Характеристики
| Производитель | BIGIESSE | 
| Производительность, м.куб/час | 40 | 
| Мощность, кВт | 1,1 | 
| Диаметр входного патрубка | G 1" | 
| Диаметр выходного патрубка | G 1" | 
| Частота вращения, об/мин | 1 450 | 
| Электропитание | 3х380 V, 50 Hz | 
| Взрывозащита | нет | 
| Производительность (nom), м.куб/час | 40 | 
| Глубина вакуума, мБар | 10 | 
| Материал проточной части | чугун | 
| Страна происхождения | Италия | 
| Тип насоса | вакуумный | 
| Тип привода | электрический | 
| Тип комплектации | с двигателем | 
| Логистические данные: | |
| Вес, кг | 42 | 


















































































































































 
             
            























