Catalog
Else categories
- Home
- Internal devices of columns and apparatuses
- Valve plates, mesh plates, cap plates, ballast plates
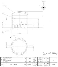
- Valve plate AISI 304,800 mm with promoters for flow distribution
Valve plate AISI 304,800 mm with promoters for flow distribution
Documentation
Download instructions, catalog for Valve plate AISI 304,800 mm with promoters for flow distribution
Overview

Designing or manufacturing of column plates according to customer drawings . Columns Types of distillation plates Types of plates 1.1 Cap plates 1.2 Screen plates 1.3 Grating plates 1.4 With S-shaped elements Valve (disk) plates Application of different types of plates Main characteristics of comparison Calculation of heat removal by remote irrigation Selection of the optimal design of contact devices Plate overflow devices Types of plates Dozens of designs of contact devices are used in columns nowadays, differing in their characteristics and technical and economic parameters. Along with the first-generation plates (cap, grooved), which are still in use at old plants, S-shaped, valve (plate, disk) and other types of contact devices have become widespread.
The operating mode is the interaction of steam and liquid, the operating mode includes such parameters as: steam volume (heating intensity of the cubic part), the amount of phlegm (the volume of liquid used to irrigate the plates). The mode also includes the amount of liquid on the plates, it is regulated by the height of the partition on the distillation plate, if the liquid overflows the partition, then choking occurs, which leads to a minimum quality of interaction between steam and liquid, if the height of the liquid layer is small, then the vapors rising from the bottom of the column are practically not enriched with phlegm (nkk).
The valve plates are widely used in the petrochemical and distillation industries, with column diameters ranging from 0.5 to 10 m, with plate spacing from 170 to 1100 mm, with designs ranging from single-stream to six-stream, and with a number of plates ranging from a few to more than 200. The EDV® plate is also used in vacuum and high-pressure systems. The main advantages of these plates are their ability to provide efficient mass transfer over a wide range of working loads, simple design, low metal consumption and low cost.
Characteristics
| Producer | BTS Engineering | 
| Material | AISI 304 stainless steel | 
| Diameter, mm | 800 | 
| Max.temperature, C | 300 | 
| Distance between button mm | 170 | 
| Area, m2 | 0.503 | 
| Valve type | EDV | 
| Logistics data: | 
Categories:Valve plates, mesh plates, cap plates, ballast platesDesign, construction of a distillery, distillation
Video Valve plate AISI 304,800 mm with promoters for flow distribution
Products from the same category
1050891
Pre-order only
1010676
Pre-order only
1010678
Pre-order only






































































































































































